HOME / Á¦Ç°Á¤º¸ / ÀÚµ¿ À¯¾Ð ¿¼ºÇü ÇÁ·¹½º ¶óÀÎ


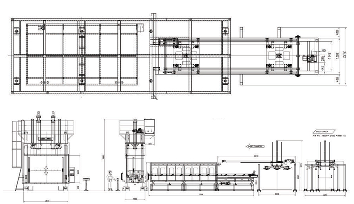
| Ç׸ñ | ³»¿ë | |
|---|---|---|
| MODEL | TY-200HFM | |
| ¼ºÇü¸éÀû (TABLE AREA) | 1,600(mm) x 1,200(mm) | |
| ¼ºÇü¾Ð·Â (PRESS PRESSURE) | 200 TON | |
| Ãִ뼺Çü±íÀÌ (MAX FORM DEPTH) | 800mm | |
| ¿ø´ÜµÎ²² (MATRIAL THICKNESS SPACE) | 3~10mm | |
| ÇàÁ¤°Å¸® (STROKE) | »ó 1,600mm | |
| Å×ÀÌºíµ¿ÀÛ (OPERATING) | »ó/ÇÏ - À¯¾Ð½Ç¸°´õ ±¸µ¿¹æ½Ä | |
| ±â°è»çÀÌÁî (DIMENSION)mm | 3,610(W) x 13,144(L) x 5,800(H) | |
| ±â°è¹«°Ô (WEIGHT) | 30TON | |